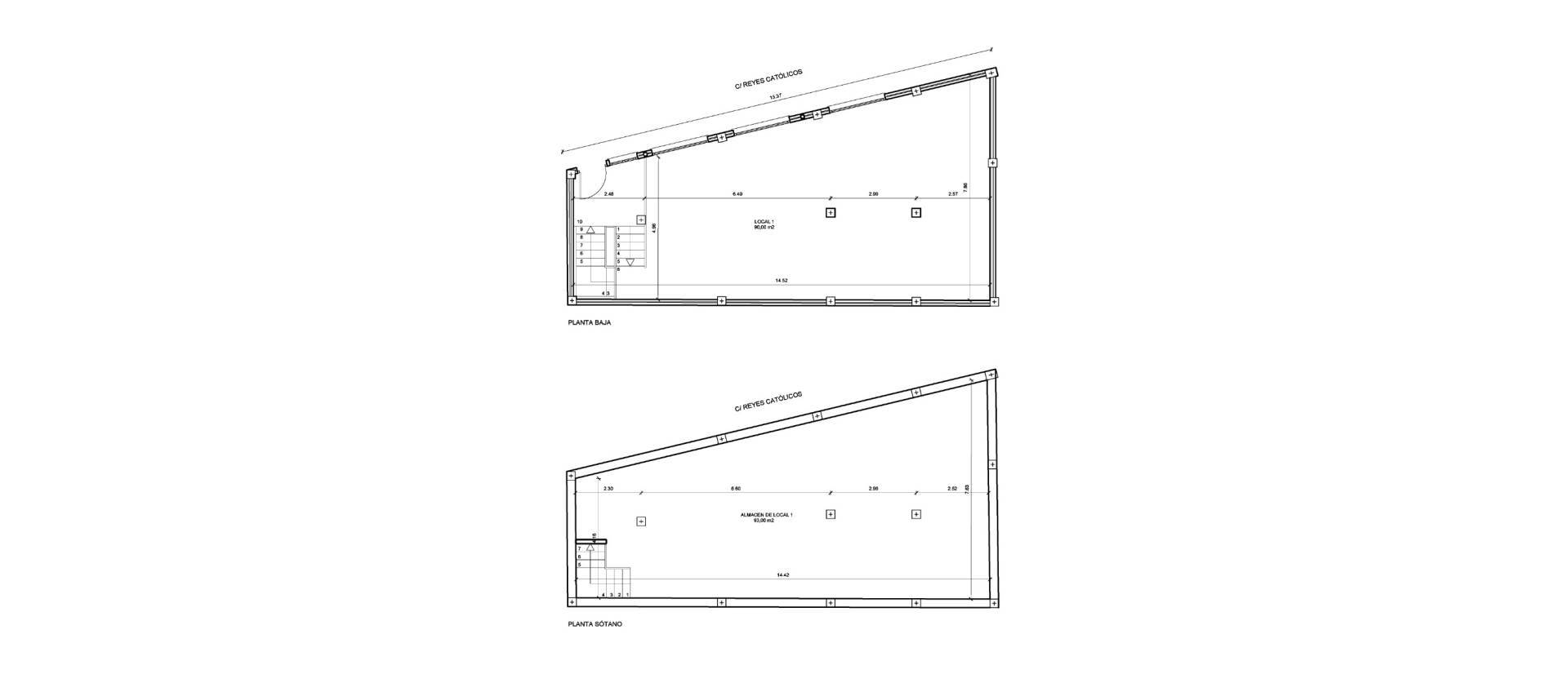
Nouvelle unité commerciale à vendre à Los Montesinos. Il est vendu tel quel, sous sa forme de base, prêt à être fini dans le style exactement comme vous le souhaitez. Il y a aussi la possibilité de convertir cette unité en une maison très spacieuse à vivre. L'entrée principale est légèrement surélevée et il y a quatre grandes fenêtres à l'avant de l'unité, laissant entrer beaucoup de lumière naturelle. Le rez-de-chaussée de la propriété fait 97m2, ce qui est une grande taille, que vous souhaitiez en faire un usage commercial ou habitable. Juste à l'entrée, un escalier mène au demi-sous-sol. Le demi-sous-sol a une superficie de 85m2 et peut être utilisé pour le stockage, ou également pour faire partie de la maison si vous le souhaitez pour une utilisation habitable. Il y a des fenêtres minces dans la partie supérieure qui permettent à la lumière naturelle d'entrer, comme vous pouvez le voir sur les photos extérieures. Une propriété avec beaucoup de potentiel, peu importe l'usage que vous comptez en faire!
Cette information donnée ici est sujette à des erreurs et ne fait partie d'aucun contrat. L'offre peut être modifiée ou retirée sans préavis. Les prix n'incluent pas les coûts d'achat
© 2026 ASPIRE PROPERTIES ● Mentions légales ● Intimité ● Cookies ● Plan du site
Conception & CRM: Mediaelx
Tout d’abord, merci de nous contacter.
Nous avons reçu votre demande concernant la référence du bien:Bel-19267. Un de nos agents vous contactera dans les meilleurs délais.
Tout d’abord, merci de nous contacter.
Nous avons reçu une demande de rapport si vous abaissez le prix de la propriété avec la référence: Bel-19267
En attendant, jetez un œil à cette sélection de propriétés similaires qui pourraient vous intéresser: