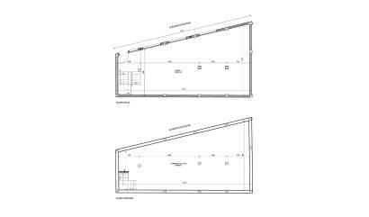
Se vende local comercial para estrenar en Los Montesinos. Se vende tal cual, en forma básica, listo para que usted lo termine con el estilo que desee. También existe la posibilidad de convertir esta unidad en una casa muy espaciosa para vivir. La entrada principal está ligeramente elevada y hay cuatro ventanas grandes en el frente de la unidad, lo que permite la entrada de mucha luz natural. La planta principal de la propiedad es de 97m2, lo que es un gran tamaño tanto si pretende utilizarla como comercial o habitable. Justo al lado de la entrada hay unas escaleras que conducen al semisótano. El semisótano tiene una superficie de 85m2, pudiendo destinarse a almacén, o también para continuar como parte de la casa si se desea un uso habitable. Hay ventanas delgadas en la parte superior que permiten la entrada de luz natural, como se puede ver en las fotos exteriores. ¡Una propiedad con mucho potencial, independientemente del uso que pretendas darle!
Esta información que se proporciona aquí está sujeta a errores y no forma parte de ningún contrato. La oferta se puede cambiar o retirar sin previo aviso. Los precios no incluyen los costes de compra
© 2026 ASPIRE PROPERTIES ● Nota legal ● Privacidad ● Cookies ● Mapa Web
Diseño & CRM: Mediaelx
En primer lugar, gracias por contactarnos.
Hemos recibido su solicitud con respecto a la referencia de propiedad:Bel-19267. Uno de nuestros agentes se pondrá en contacto con usted lo antes posible.
En primer lugar, gracias por contactarnos.
Hemos recibido una solicitud de informe si baja el precio de la propiedad con la referencia: Bel-19267
Mientras tanto, eche un vistazo a esta selección de propiedades similares que podrían ser de su interés: