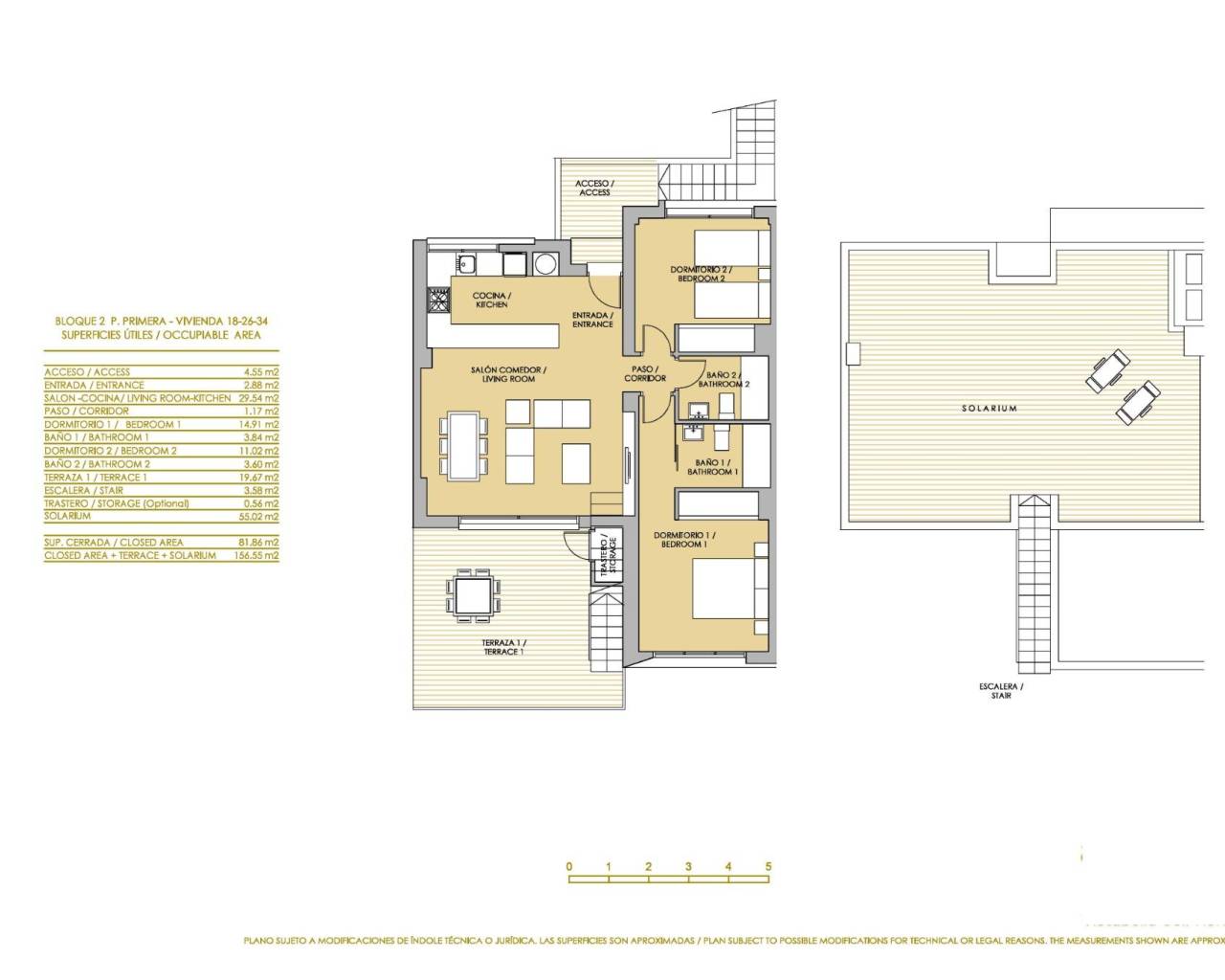
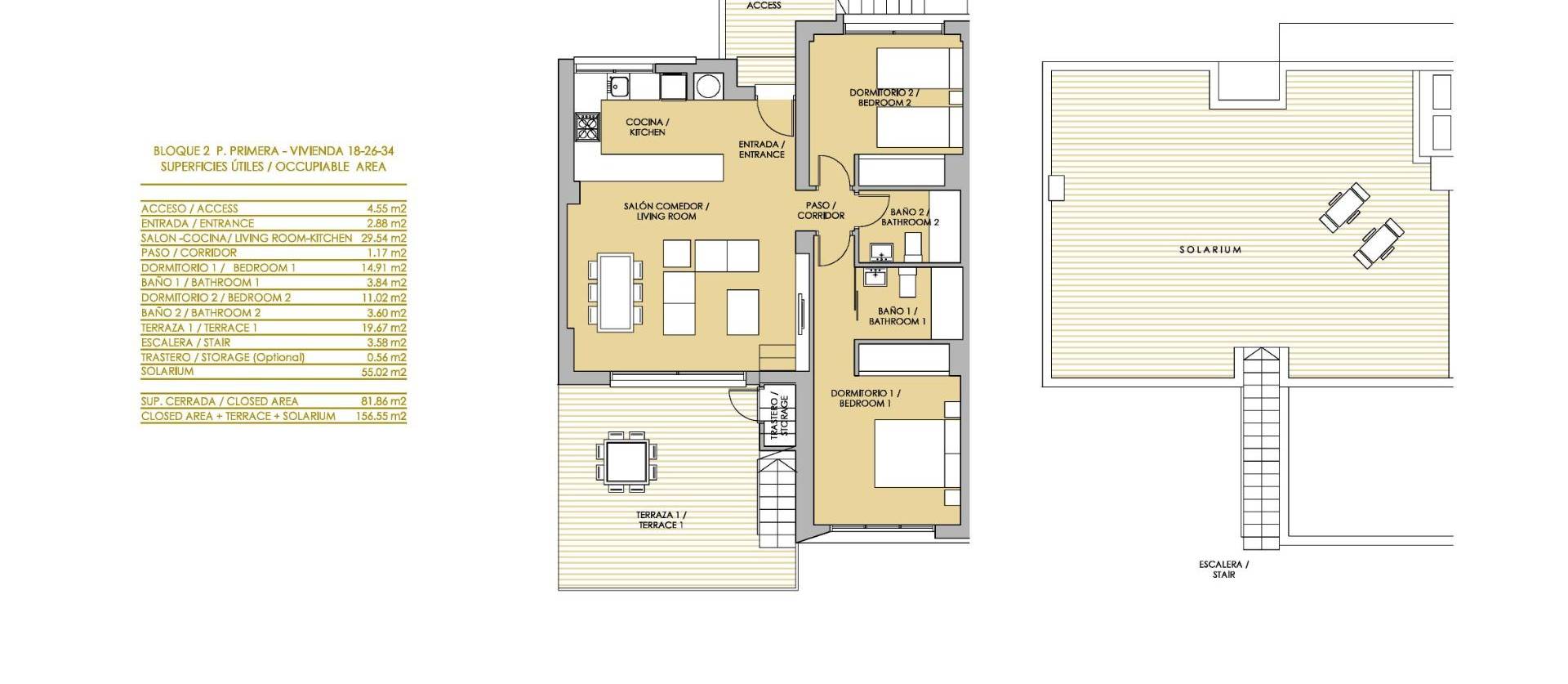
NEW BUILD RESIDENTIAL OF BUNGALOW APARTMENTS IN VISTABELLA New Build residential complex on bungalow apartments in Vistabella near the golf course. Complex with communal facilities and swimming pool consist of 2 and 3 bedrooms bungalows, on the ground floor with private garden and top floor with private solarium, open plan kitchen with the lounge area, fitted wardrobes, terrace. Each apartment has private parking. An options storeroom at an extra cost. At Vistabella Golf there is space for everyone. The course is designed so that each player can enjoy it from start to finish. Its undulating streets, strategic bunkers or lakes are some of the features that make it one of the most attractive designs in the area, where every stroke is a challenge and a pleasure for the senses. The 18 Holes of Vistabella Golf, par 72 and more than 6,000 meters in length have been designed following the guidelines of the modern fields with 4 tees of great amplitude in each hole, wide fairways and raised bunkers. The Vistabella Golf club house & restaurant & local bars & shops are within 5 minutes walk. The busy town of San Miguel de Salinas & Los Montesinos are 5 minutes drive away & the lovely Blue flag beaches at Guardamar are just 15 minutes drive away. Alicante airport is 35 minutes away & the new Corvera Murcia airport is 45 minutes away. 607