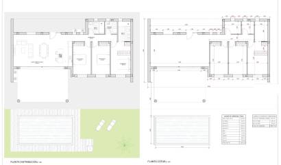
Moderne nieuwbouwwoning op een groot rustiek perceel in de buurt van Pinoso Eigentijds wonen in een rustige landelijke omgeving Ontdek deze elegante nieuwbouwwoning op een ruim rustiek perceel van meer dan 10.000 m² (waarvan ongeveer 3.000 m² omheind) aan de rand van Pinoso, Alicante. Deze moderne woning is ontworpen voor mensen die op zoek zijn naar privacy, rust en een nauwe band met de natuur, en combineert hedendaagse architectuur met de charme van het Spaanse platteland. Omgeven door wijngaarden, amandelbomen en olijfboomgaarden biedt het pand een rustige levensstijl op korte rijafstand van alle lokale voorzieningen. Ruime gelijkvloerse villa met privézwembad De villa is verdeeld over één verdieping en heeft 3 slaapkamers en 2 badkamers, waarvan één en suite. Buiten kunt u genieten van 2 overdekte terrassen (een van 20 m² en een van 40 m²) en een zwembad van 8x4, perfect om te ontspannen en te genieten van de mediterrane zon. Het pand beschikt ook over een parkeerplaats, een watertank van 10.000 liter en toegang voor voertuigen via een automatische poort, allemaal op een groot rustiek perceel dat oneindig veel mogelijkheden biedt voor tuinieren, recreatie of gewoon om te genieten van het uitzicht op de omgeving. Moderne kenmerken en hoogwaardige afwerking Deze nieuw gebouwde villa is voorzien van een pre-installatie voor airconditioning. De keuken is volledig uitgerust met apparatuur, wat een functionele en elegante ruimte biedt voor het dagelijks leven. Het moderne ontwerp, gecombineerd met hoogwaardige materialen, garandeert een comfortabele en onderhoudsvriendelijke woning, ideaal om permanent te wonen of als toevluchtsoord op het platteland. Locatie in de buurt van de stad Pinoso De woning ligt aan de rand van de stad Pinoso, een charmant dorpje in het binnenland met minder dan 8000 inwoners. Pinoso staat bekend om zijn ontspannen levensritme en authentieke Spaanse sfeer en biedt een breed scala aan voorzieningen, zoals bars, restaurants, winkels, een 24-uurs medisch centrum, tandartsen, basisscholen en middelbare scholen, een theater en een modern sportcomplex met buitenzwembaden, tennisbanen, voetbalvelden en een fitnessruimte. Het centrum van Pinoso ligt op ongeveer 3 km afstand. De stad Alicante ligt op ongeveer 55 km afstand, terwijl de witte zandstranden van de Costa Blanca op ongeveer 50 km afstand liggen. De internationale luchthaven van Alicante ligt op ongeveer 60 km afstand van het pand. De regio ligt ook dicht bij de grens met Murcia, wat nog meer mogelijkheden biedt op het gebied van bereikbaarheid en levensstijl. Een authentieke Spaanse levensstijl omgeven door natuur Wonen in Pinoso betekent genieten van een traditionele landelijke levensstijl, met weinig verkeer, open landschappen en een sterk gemeenschapsgevoel. In februari komt het omliggende platteland tot leven met de amandelbloesem, wat een spectaculair natuurspektakel oplevert. Uw droomhuis op het platteland wacht op u Deze moderne, nieuw gebouwde villa in Pinoso biedt de perfecte balans tussen hedendaags comfort en de rust van het plattelandsleven. Neem vandaag nog contact met ons op voor meer informatie of om een bezichtiging te regelen en zet de eerste stap naar uw nieuwe huis op het Spaanse platteland. 607