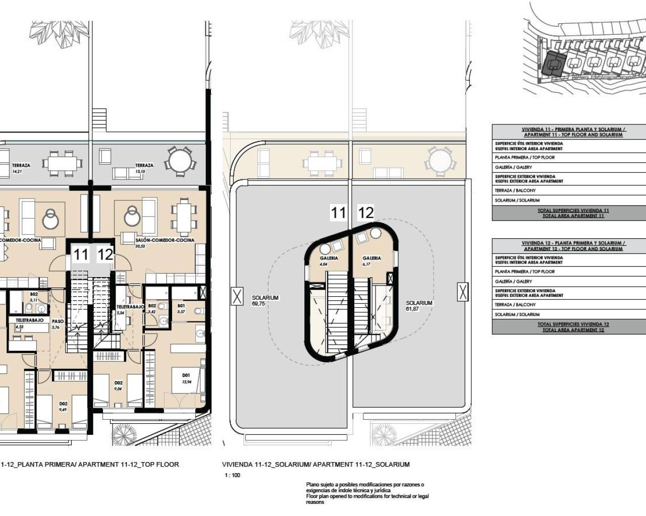
Nieuwbouw Bungalows met Uitzicht op Zee in La Mata, Torrevieja Bevoorrechte locatie op 300 meter van het strand Deze exclusieve nieuwe ontwikkeling is gelegen in La Mata, Torrevieja, een van de meest gewilde gebieden van de Costa Blanca. Slechts 300 meter van het strand, deze ontwikkeling biedt een uitzonderlijke natuurlijke omgeving met panoramisch uitzicht op zee en gemakkelijke toegang tot alle essentiële voorzieningen. La Mata is een levendige wijk met een speciale charme, omringd door promenades, restaurants, cafés en supermarkten, waardoor het de perfecte bestemming is voor zowel het hele jaar door wonen als genieten van een tweede huis aan zee. Modern ontwerp en energie-efficiëntie Dit project valt op door de elegante mediterrane architectuur met een avant-gardistisch tintje. Ontworpen volgens de Passivhaus-norm, garandeert het een duurzame constructie die maximaal thermisch comfort en energie-efficiëntie biedt, waardoor het verbruik en de impact op het milieu worden verminderd. De woningen hebben een hoogwaardige afwerking, ruime kamers en een overvloed aan natuurlijk licht, waardoor een perfecte balans wordt bereikt tussen design en functionaliteit. Woonopties voor alle levensstijlen Gelijkvloerse appartementen met een grote privétuin met uitzicht op zee en genoeg ruimte voor een privézwembad. Ze hebben ook een halve kelder met de mogelijkheid om extra slaapkamers toe te voegen. Bovenste verdieping appartementen met groot balkon, privé solarium en spectaculair uitzicht op zee, perfect om te genieten van de mediterrane zon. Exclusieve gemeenschappelijke ruimtes Dit project biedt ruimtes die zijn ontworpen voor comfort en ontspanning: Gemeenschappelijk overloopzwembad, ideaal om af te koelen met panoramisch uitzicht. Ondergrondse parkeerplaats inbegrepen bij elke woning. Nabijheid van bezienswaardigheden La Mata strand - 300 m. Torrevieja centrum - 6 km. Parque Natural de las Lagunas de La Mata-Torrevieja - 2 km. Golfbaan La Marquesa - 15 km. Luchthaven Alicante - 40 km (ca. 40 min.). Luchthaven Murcia - 65 km (ca. 1 uur). Jouw thuis aan de Costa Blanca wacht op je Als je op zoek bent naar een luxe appartement met uitzicht op zee, op een bevoorrechte locatie en met alle voorzieningen, dan is deze residentie je beste optie. Neem vandaag nog contact met ons op voor meer informatie en om een bezichtiging te regelen. 607
Deze informatie is hier onderhevig aan fouten en maakt geen deel uit van een contract. De aanbieding kan zonder kennisgeving worden gewijzigd of ingetrokken. Prijzen zijn exclusief aankoopkosten.
Allereerst bedankt dat je contact met ons hebt opgenomen.
We hebben uw verzoek met betrekking tot de eigenschap referentie ontvangen:APRD-19683. Een van onze agenten neemt zo snel mogelijk contact met u op.
Allereerst bedankt dat je contact met ons hebt opgenomen.
We hebben een aanvraag voor een rapport ontvangen als u de prijs van het onroerend goed met de referentie verlaagt: APRD-19683
Bekijk in de tussentijd eens een selectie van vergelijkbare woningen die voor u van belang kunnen zijn: