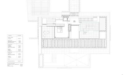
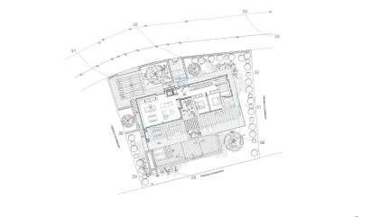
Villa contemporaine avec vue panoramique sur la mer à La Fustera, Benissa Costa Cette villa exclusive de construction récente, conçue par un architecte de renom et développée par un promoteur local ayant plus de 20 ans d'expérience, est située sur un terrain de 800 m² à quelques pas de la plage de La Fustera. Alliant la chaleur méditerranéenne à l'élégance contemporaine, l'architecture combine la pierre naturelle, le bois et des tons neutres doux, s'intégrant parfaitement au paysage côtier. Avec une surface totale de 716 m² répartis sur trois niveaux - sous-sol, rez-de-chaussée et premier étage - la villa offre un équilibre parfait entre fonctionnalité, design et confort. Sous-sol Le sous-sol de 105,97 m² est conçu à la fois pour être pratique et pour les loisirs. Il comprend une salle de sport entièrement équipée, une buanderie et des espaces techniques, avec la possibilité d'adapter des espaces supplémentaires pour en faire une cave à vin, un cinéma ou une salle polyvalente. Ce niveau abrite également le système de filtration de la piscine et les réservoirs d'eau, assurant une gestion efficace de toutes les installations techniques. Rez-de-chaussée Le niveau principal, d'une superficie de 137,93 m², se déploie dans un espace ouvert et lumineux qui capture l'essence même de la vie méditerranéenne. Le salon spacieux, la salle à manger et la cuisine s'ouvrent par de grandes baies vitrées sur la terrasse principale et la piscine à débordement, offrant une vue panoramique incroyable sur la mer qui définit le caractère de cette maison. Deux chambres doubles, une salle de bain complète et des toilettes pour invités complètent cet étage, offrant confort et fonctionnalité. À l'extérieur, une pergola en bois ombrage le salon et la salle à manger extérieurs, entourés de jardins luxuriants, de terrasses ensoleillées et d'une piscine à débordement de 59,40 m² qui se confond visuellement avec la mer. Premier étage Le niveau supérieur, d'une superficie de 70,19 m², est réservé à la suite parentale, un refuge privé comprenant un dressing, une salle de bains attenante et une grande terrasse privée offrant une vue imprenable sur la mer Méditerranée. Une deuxième chambre ou un espace bureau complète cet étage, qui donne également accès à un solarium de 25,02 m², idéal pour se détendre au soleil et profiter de la sérénité des environs. Extérieur et emplacement Située dans une rue résidentielle calme entourée de villas modernes, cette propriété bénéficie d'un emplacement exceptionnel à seulement 3 minutes à pied de la plage de La Fustera (150 m), du Mandala Beach Bar & Restaurant et des commodités essentielles telles que les supermarchés et les services locaux. Conçue en mettant l'accent sur la lumière, l'espace et la fluidité entre l'intérieur et l'extérieur, cette villa incarne le style de vie méditerranéen moderne : élégant, détendu et en parfaite harmonie avec ses spectaculaires vues panoramiques sur la mer. Assurez-vous la villa de vos rêves à La Fustera, Benissa Costa, et adoptez le style de vie méditerranéen ultime avec des vues imprenables sur la mer et un confort inégalé. 607
Cette information donnée ici est sujette à des erreurs et ne fait partie d'aucun contrat. L'offre peut être modifiée ou retirée sans préavis. Les prix n'incluent pas les coûts d'achat
© 2026 ASPIRE PROPERTIES ● Mentions légales ● Intimité ● Cookies ● Plan du site
Conception & CRM: Mediaelx
Tout d’abord, merci de nous contacter.
Nous avons reçu votre demande concernant la référence du bien:APRD-85696. Un de nos agents vous contactera dans les meilleurs délais.
Tout d’abord, merci de nous contacter.
Nous avons reçu une demande de rapport si vous abaissez le prix de la propriété avec la référence: APRD-85696
En attendant, jetez un œil à cette sélection de propriétés similaires qui pourraient vous intéresser: