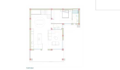
Un proyecto de obra nueva en tres fases, comenzando con la Fase 11 en la zona sur. Esta fase consta de seis villas muy espaciosas y modernas. El proyecto se ubica en el encantador barrio de Dolores. En la planta baja, encontramos un amplio salón, una preciosa cocina con isla, una acogedora y espaciosa zona de TV y un aseo de cortesía. La casa cuenta con tres dormitorios dobles: uno en la planta baja con baño en suite y dos en la primera planta, que también incluye un baño familiar y un lavadero. La superficie total construida es de aproximadamente 165 metros cuadrados, con una parcela de aproximadamente 260 metros cuadrados, lo que ofrece un amplio espacio para una vida cómoda. La villa también cuenta con un sótano (bodega técnica) que se entrega sin terminar, pero se puede terminar por un suplemento. La casa cuenta con una preciosa cocina americana con electrodomésticos integrados y barra americana, un acogedor y espacioso salón, dormitorios con armarios empotrados y mucho más. Su hermosa y espaciosa distribución proporciona abundante luz natural y una agradable vista a la hermosa terraza y al parque de la ciudad. Además de la terraza en la planta baja, la villa también cuenta con una espaciosa terraza en el primer piso y el lujo de una piscina privada, perfecta para relajarse o entretenerse, además de aparcamiento en el mismo lugar. Todas las ventanas de aluminio cuentan con persianas eléctricas y la casa cuenta con una puerta de seguridad blindada. El aire acondicionado está instalado tanto en la planta baja como en el primer piso, lo que la hace lista para su ocupación inmediata.
Esta información que se proporciona aquí está sujeta a errores y no forma parte de ningún contrato. La oferta se puede cambiar o retirar sin previo aviso. Los precios no incluyen los costes de compra
© 2026 ASPIRE PROPERTIES ● Nota legal ● Privacidad ● Cookies ● Mapa Web
Diseño & CRM: Mediaelx
En primer lugar, gracias por contactarnos.
Hemos recibido su solicitud con respecto a la referencia de propiedad:Bel-20839. Uno de nuestros agentes se pondrá en contacto con usted lo antes posible.
En primer lugar, gracias por contactarnos.
Hemos recibido una solicitud de informe si baja el precio de la propiedad con la referencia: Bel-20839
Mientras tanto, eche un vistazo a esta selección de propiedades similares que podrían ser de su interés: