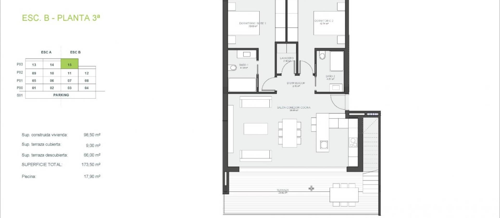
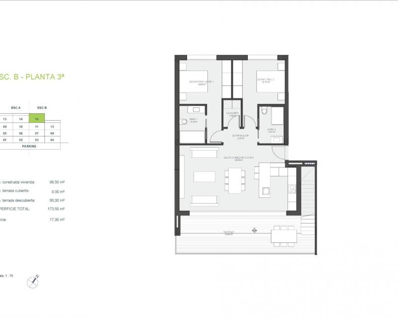
COMPLEJO RESIDENCIAL DE OBRA NUEVA EN LAS COLINAS GOLF La promoción de obra nueva consta de 15 apartamentos de lujo con enormes terrazas con vistas a la zona verde natural circundante. Hemos realizado una combinación de arquitectura mediterránea moderna y tradicional. Nuestra idea desde el principio ha sido hacer los apartamentos, con una descripción de materiales que incluye entre otros, calefacción por suelo radiante con agua, grifo quooker, sistema de renovación de aire, techos de reducción de sonido, cocinas lacadas, sistema de casa inteligente y mucho más. Teniendo en cuenta la ubicación privilegiada y las vistas creemos que el complejo ofrece las condiciones ideales para satisfacer los criterios de clientes con gusto exquisito. La tercera planta consta de 3 apartamentos: 2 apartamentos con 3 dormitorios, 3 baños y un aseo y 1 apartamento con 2 dormitorios y 2 baños. Desde los apartamentos se tiene acceso directo a grandes terrazas en el mismo nivel que el apartamento. Además, hay una escalera que lleva al solarium, donde cada apartamento de la planta superior tiene una piscina privada, un aseo, una cocina al aire libre con un pequeño ascensor desde la cocina de abajo y mucho más. En Las Colinas Golf & Country Club encontrará además una amplia variedad de servicios para los propietarios como tenis, padel-tenis, fitness, masajes, golf, senderismo y mucho más. Dentro de Las Colinas Golf & Country Club también encontrará varios restaurantes así como un minimarket con pan recién horneado y mucho más. Disfrutará de 200.000 metros cuadrados de hermosos paisajes mediterráneos y podrá realizar pintorescos paseos por la exuberante flora autóctona y los extensos campos de naranjos y limoneros. Complejo situado a 40 minutos del aeropuerto de Alicante y a 1 hora del aeropuerto de Murcia - Corvera. 607
Esta información que se proporciona aquí está sujeta a errores y no forma parte de ningún contrato. La oferta se puede cambiar o retirar sin previo aviso. Los precios no incluyen los costes de compra
© 2026 ASPIRE PROPERTIES ● Nota legal ● Privacidad ● Cookies ● Mapa Web
Diseño & CRM: Mediaelx
En primer lugar, gracias por contactarnos.
Hemos recibido su solicitud con respecto a la referencia de propiedad:APRD-33681. Uno de nuestros agentes se pondrá en contacto con usted lo antes posible.
En primer lugar, gracias por contactarnos.
Hemos recibido una solicitud de informe si baja el precio de la propiedad con la referencia: APRD-33681
Mientras tanto, eche un vistazo a esta selección de propiedades similares que podrían ser de su interés: