ASPIRE PROPERTIES

Villa · Nueva construcción

Alicante · La Romana
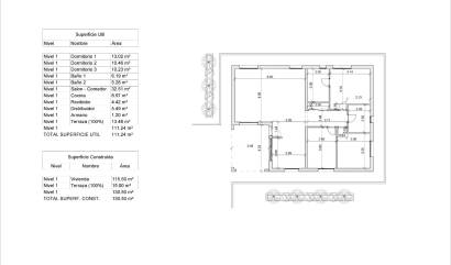
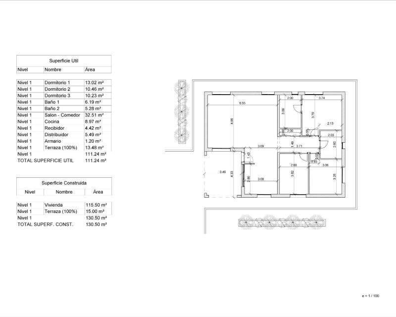
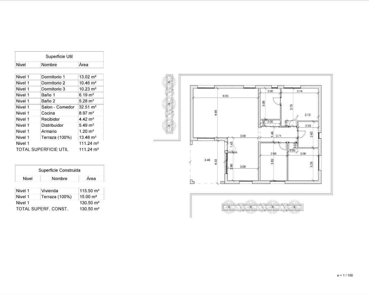
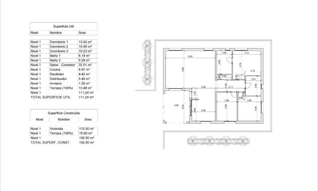
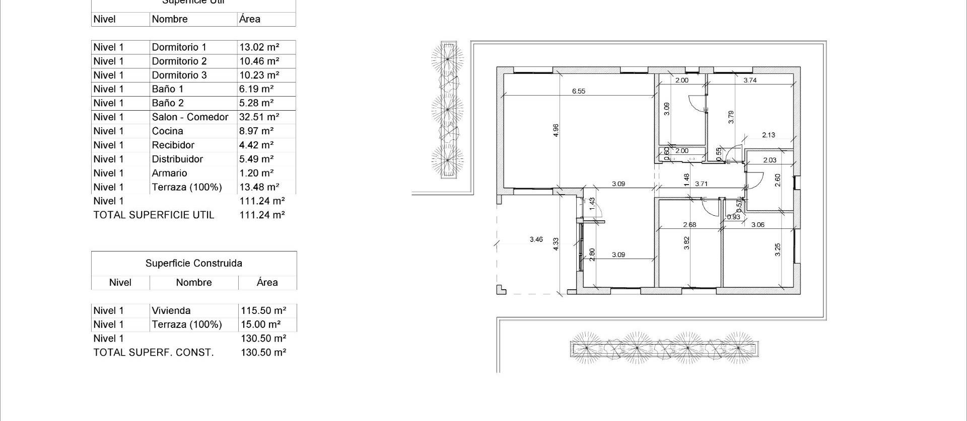
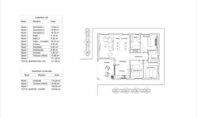
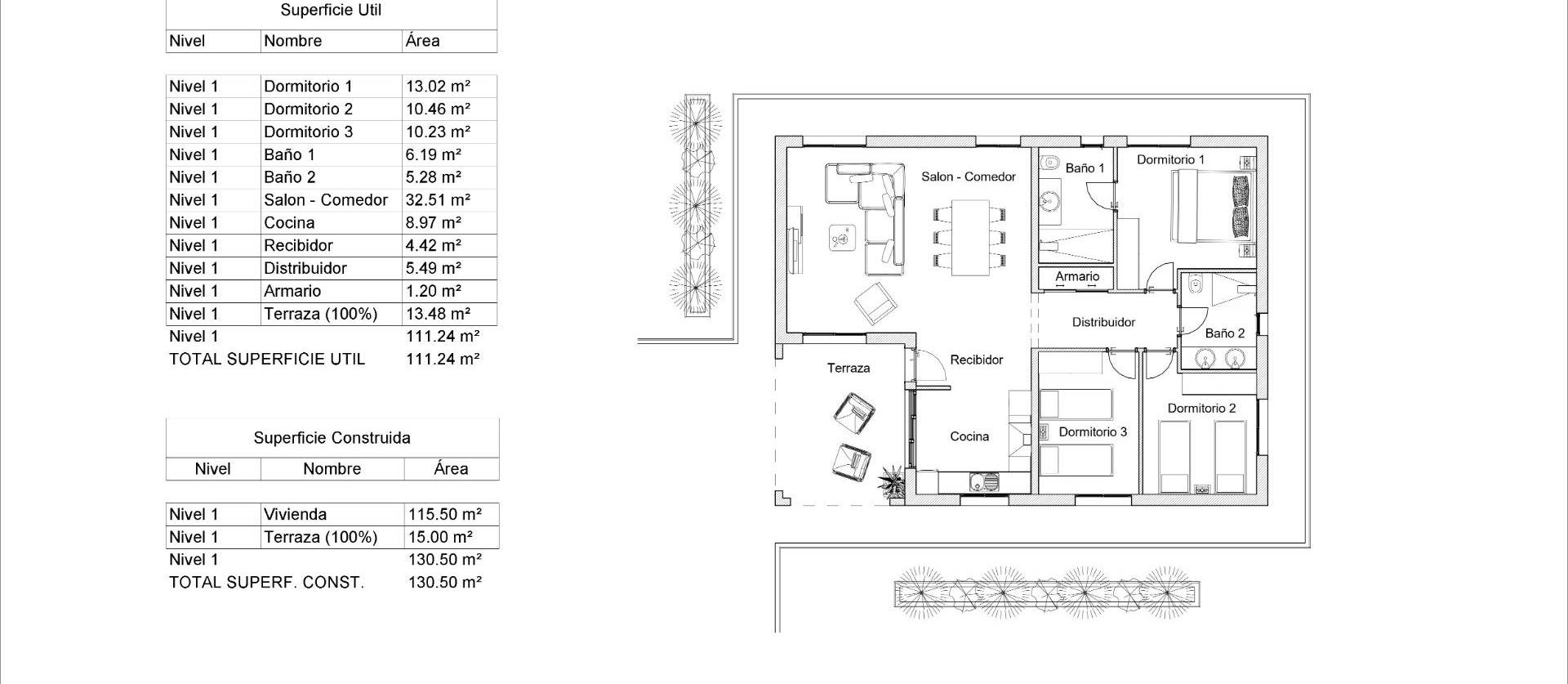
130m2
10.227m2
3
2
 
378.000€

Villa · Nueva construcción

Alicante · La Romana
378.000€

Características

Habitaciones: 3
Baños: 2
Construidos: 130m2
Parcela: 10.227m2
Piscina:
Private pool
Garden
Gated
near schools
Air Conditioning: Pre-Installed
Double Bedrooms: 3
Number of Parking Spaces: 1
Terrace: 15 Msq.
Useable Build Space: 110 Msq.
Location: Mountain
Parking - Space
Beach: 40000 Meters

Descripción


Localización

Volver a los resultados de la búsqueda
Volver a los resultados de la búsqueda

Solicitar información

Responsable del tratamiento: Mark Springham, Finalidad del tratamiento: Gestión y control de los servicios ofrecidos a través de la página Web de Servicios inmobiliarios, Envío de información a traves de newsletter y otros, Legitimación: Por consentimiento, Destinatarios: No se cederan los datos, salvo para elaborar contabilidad, Derechos de las personas interesadas: Acceder, rectificar y suprimir los datos, solicitar la portabilidad de los mismos, oponerse altratamiento y solicitar la limitación de éste, Procedencia de los datos: El Propio interesado, Información Adicional: Puede consultarse la información adicional y detallada sobre protección de datos Aquí.
Contactar WhatsApp